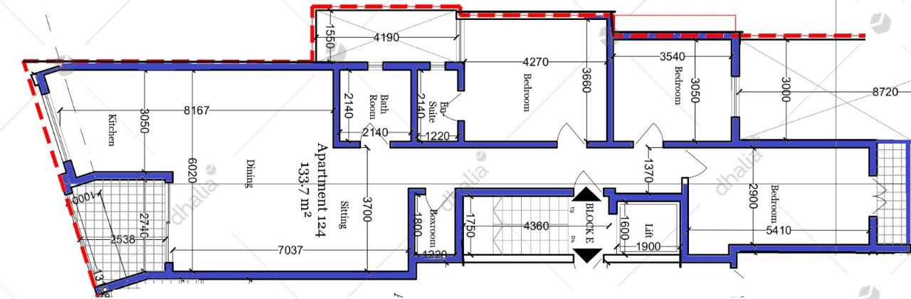
A vendre – Appartement au premier étage faisant partie d’un immeuble neuf et moderne situé dans un quartier très recherché à l’angle du bord de mer et face à un espace vert. Le logement offre un agencement sous la forme d’une cuisine/salon/salle à manger avec une terrasse avant assez grande pour une petite table et quatre chaises, trois chambres, dont la principale avec salle de bains, un débarras et la salle de bain principale.
Fiche :
3 chambres
0 salle de bains
134 m2
Terrain 0 m2
Des milliers d’autres biens ne sont pas en publicité. Contactez-nous maintenant pour recevoir votre sélection sur mesure :




